Bungalow Calisto
Highlights:
- Lichtdurchfluteter offener Wohn- und Kochbereich
- Großer überdachter Terrassenbereich
- Geräumiges Familienbad
- Eingangsbereich mit viel Platz für die Garderobe
- Jedes Haus wird individuell nach Ihren Wünschen geplant und ausgestattet
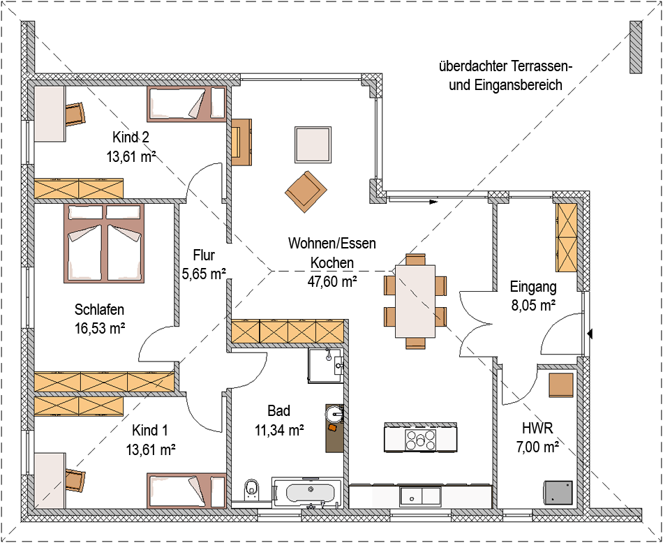
Beschreibung
Der Bungalow Calisto besticht durch sein exklusives, modernes Design sowie einer optimalen Raumaufteilung. Er ist zur Straßenseite hin abgeschlossen und öffnet sich zum Gartenbereich mit großen Terrassentüren, die reichlich Licht in den Innenraum lassen. Im Eingangsbereich steht genügend Platz zur Verfügung, um eine umfangreiche Garderobe mit Schuhschrank unterzubringen. Zudem trägt der großzügige Hauswirtschaftsraum zur Funktionalität des Eingangs bei. Das Herzstück des Bungalows ist der offene Wohn- und Essbereich mit großen Terrassentüren und direktem Zugang zum überdachten Terrassenbereich. Hier kann man zu jeder Jahreszeit den Nachmittag und Abend genießen und herrlich entspannen. An den Wohnbereich schließt der Flur mit Zugang zu zwei großen Kinderzimmern, ein sehr großzügiges Familienbadezimmer und ein geräumiges Elternschlafzimmer an.
Der Bungalow Camilo wird genauso wie alle anderen HOGAF-Häuser individuell nach Ihren Vorstellungen geplant und ausgestattet.
| Raumprogramm | 4 Zimmer,offene Küche, HWR, großes Bad, 2 Kinderzimmer, Schlafzimmer |
| Abmessungen | 15,50 m x 12,50 m |
| Wohnfläche | ab 123 m² |
| Anzahl Vollgeschosse | 1 |
| Dachform | Walmdach |
| Dachneigung | 25° |
| Bauweise | Poroton Planziegel mit WDV-System |
| Heizsystem | Luft Wasser Wärmepumpe, z.B. Vaillant |
Für die Zukunft gebaut:
![]()
Jedes HOGAF-Haus ist serienmäßig in der besten Energieeffizienzklasse A+.
