Bungalow Basic-I
Highlights:
- Große Küche mit Platz für einen Esstisch
- Gästezimmer auch als Home-Office möglich
- Geräumiges Schlafzimmer
- Zweiflügelige Terrassentüren zum Gartenbereich
- Jedes Haus wird individuell nach Ihren Wünschen geplant und ausgestattet
Beschreibung
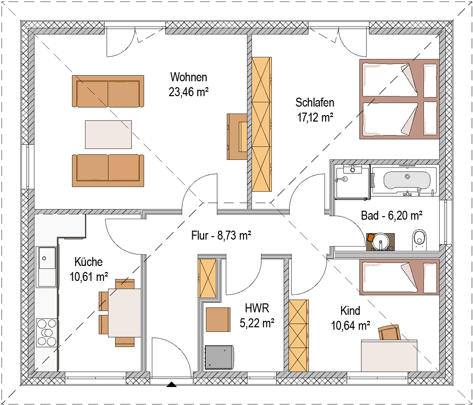
Der Bungalow Basic-I bietet mit 3 Zimmern auf 82 Quadratmetern eine optimale Raumaufteilung zum Wohlfühlen für Singles, Paare sowie für Senioren, die bis ins hohe Alter barrierearm wohnen möchten. Kleines Haus ganz groß und das vor allem im Wohnbereich der über 25m² groß ist und den Zugang zur Terrasse und Garten ermöglicht und der großzügigen Küche mit 10m² wo gemeinsam gekocht und gegessen wird. Neben dem Wohnbereich sind ein Schlafzimmer sowie ein weiteres Zimmer eingeplant, was flexibel nach Ihren Wünschen als Gästezimmer oder Büro genutzt werden kann. Komplettiert wird der kleine, aber feine Bungalow durch ein Badezimmer mit bodengleicher Dusche und Badewanne und einen Hauswirtschaftsraum, wo neben der innovativen Heiztechnik auch problemlos Waschmaschine, Trockner und Regale untergebracht werden können.
Der Bungalow Basic-I wird genauso wie alle anderen HOGAF-Häuser individuell nach Ihren Vorstellungen geplant und ausgestattet.
| Raumprogramm | 3 Zimmer, Gast/Home Office, Küche, HWR, Bad mit Wanne und Dusche, Schlafzimmer |
| Abmessungen | 14,04 m x 8,61 m |
| Wohnfläche | 102 m² |
| Anzahl Vollgeschosse | 1 |
| Dachform | Walmdach |
| Dachneigung | 25° |
| Bauweise | Poroton Planziegel mit WDV-System |
| Heizsystem | Luft Wasser Wärmepumpe, z.B. Vaillant |
Für die Zukunft gebaut:
![]()
Jedes HOGAF-Haus ist serienmäßig in der besten Energieeffizienzklasse A+.
